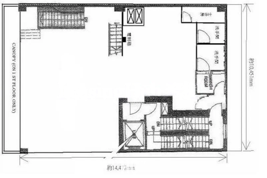
456-458 Jaffe Road , Causeway Bay, Hong Kong
Ownership: Stratified Ownership
Completed In: 1981
Total Floor: 18
| Floor System | Bare Cement |
|---|---|
| Air Conditioning | Independent A/C (Split A/C) |
| MTR Access | Causeway Bay - Within 5 minutes walk (C Exit) |
| Carpark | Not Available |




Building Highlights