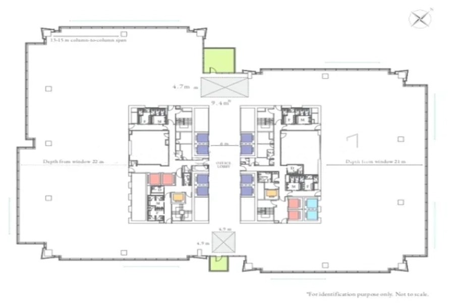
9 Caroline Hill Road , Causeway Bay, Hong Kong
Ownership: Single Landlord
Completed In: 2025
Total Floor: 27
| Floor System | Raised floor |
|---|---|
| Air Conditioning | Central A/C |
| Floor-to-Ceiling Height | Approx 3.25 (Meter) m |
| MTR Access | Causeway Bay - Within 10 minutes walk (F Exit) |
| Carpark | For Tenant Only Monthly Hourly EV Charging Stations |

-1769570809068.png)


-1769570809068.png)

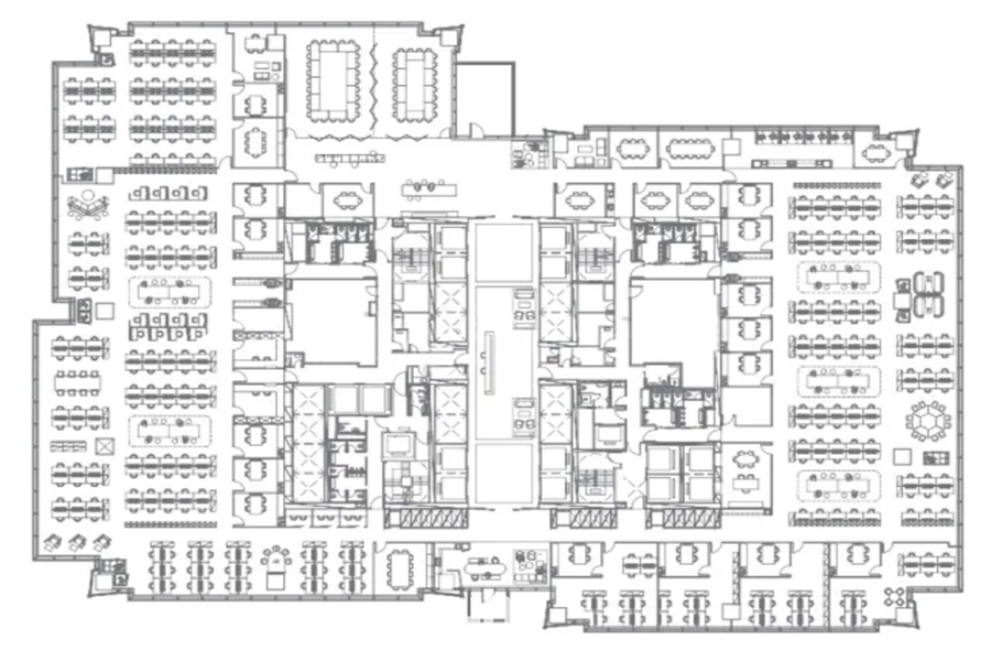
Building Highlights