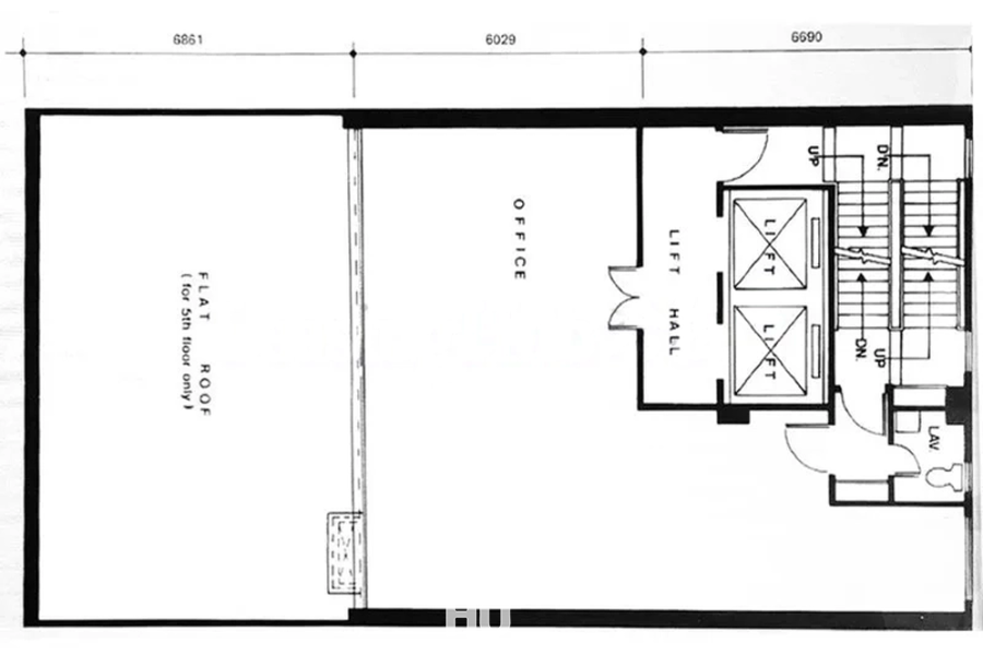
9 Shelter Street , Causeway Bay, Hong Kong
Ownership: Stratified Ownership
Completed In: 1981
Total Floor: 21
Size: 1,168 ft² (G)
Rent Range: $28,850
| Air Conditioning | Independent A/C |
|---|---|
| Floor-to-Ceiling Height | Approx 2.70 (Meter) m |
| MTR Access | Causeway Bay - Within 15 minutes walk (F1 Exit) |
| Carpark | Not Available |




Last updated: 21/04/2026
| Approx. Area | Rental | Floor | View | Condition | |
|---|---|---|---|---|---|
| 1,168 ft²(Gross) | $28,850 @$24.7 | High Level | Open City View | Full Fitout, Availability: Immediate | Enquire Now |
Building Highlights