1-1A Java Road

1-1A Java Road , North Point, Hong Kong

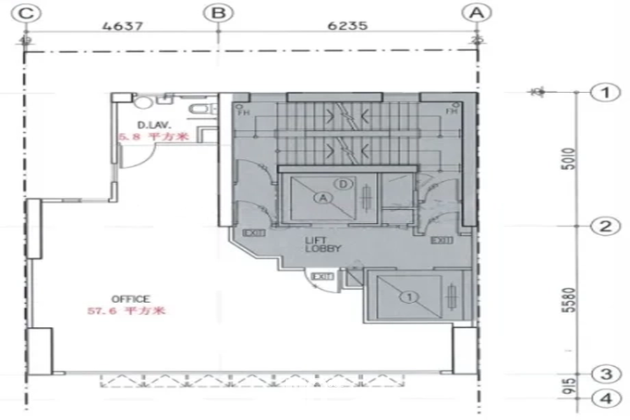
Ownership: Single Landlord

Completed In: 2022

Total Floor: 17

Floor SystemBare Cement
MTR AccessFortress Hill - Within 5 minutes walk (B Exit)
CarparkNot Available

Building Highlights

Building Highlights

Similar Listings

View More
×