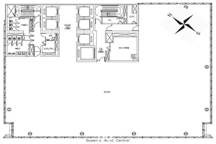
15 Queen's Road Central, Central, Hong Kong
Ownership: Single Landlord
Completed In: 2006
Total Floor: 21
Size: 1,800 - 4,942 ft² (G)
Rent Range: $252,000 - $691,880
| Floor System | Raised floor |
|---|---|
| Air Conditioning | Central A/C (V.A.V.) |
| Floor-to-Ceiling Height | Approx 2.60 (Meter) m |
| MTR Access | Central - MTR At-top (G Exit) |
| Carpark | Open to Public Monthly : $6500 (Fixed) Hourly |


-1768453373710.png)


-1768453373710.png)
Last updated: 21/04/2026
| Approx. Area | Rental | Floor | View | Condition | |
|---|---|---|---|---|---|
| 1,800 ft²(Gross) | $252,000 @$140.0 | To be confirmed | Open View | Full Fitout, Availability: Immediate | Enquire Now |
| 4,942 ft²(Gross) | $691,880 @$140.0 | To be confirmed | Open City View | False Ceilling, Availability: Immediate | Enquire Now |
Building Highlights